En
France, à la suite des lois Ferry de 1881 (école
gratuite) et 1882 (école obligatoire) et de la loi Goblet de
1886 (école laïque), les écoles se laïcisent
de plus en plus. Souvent, on attend le décès de la
Supérieure (et on en profite pour former des institutrices
laïques) pour laïciser les écoles.
Sur
St Daniel, en poste depuis 1852, décède le 1er mai 1894
: l'école communale de filles est laïcisée le 15
mai 1894. Les Surs quittent donc "l'école du May" qui
devient l'école publique de filles.
L'une des
premières (la première ?) institutrices publiques est
C. Aubin.
Extrait
des délibérations du conseil municipal, session de mai
1894 :
|
"Le
conseil municipal à l'unanimité vote à
forfait au budget de 1895 une somme de 40 francs au
secrétaire pour frais de bureau de la mairie, une
somme de 45 francs à l'instituteur et une somme de 45
francs à l'institutrice publique pour fournitures
classiques aux indigents."
|
Durant
quelques mois, pendant la construction d'un nouveau bâtiment,
les Surs, épaulées par la famille Cesbron-Lavau,
ouvrent une garderie d'enfants. Il est probable que la
quasi-totalité de leurs anciennes élèves les
suivent.
Le 1er
juillet, une dame Marie Legagneux déclare en mairie, devant J.
Merlet, adjoint, son "intention d'ouvrir dans la commune une
école primaire privée de filles." La déclaration
d'ouverture est présentée par Jean-Baptiste Humeau,
curé de St Léger, et l'école privée ouvre
au mois d'octobre 1894 : c'est "L'Ange Gardien", rue du bourg, qui
deviendra par la suite rue des Dames, de par la présence des
Surs. Sur Emmanuel-Joseph (c'est Marie Legagneux) fait la
classe, Sur Marie-Basilide s'occupe du soin des malades, de la
cuisine et du ménage.
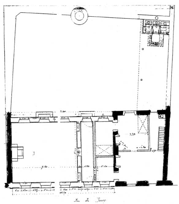
Plan
de l'école de l'Ange Gardien
L'école
privée en 1894

Voici
probablement la 1ère photo de l'Ange Gardien. Nous la datons
de 1894.
en
haut : Jeannette Rousselot (tout à fait à gauche) et
Marie-Louise Hy (4e à partir de la gauche)
au
milieu : Blanche Samson (4e à partir de la gauche) et Juliette
Hy (5e à partir de la gauche)
en
bas : Marie Landreau (tout à fait à gauche) et
Célestine Gaillot (5e à partir de la
gauche)
L'an
prochain, ce sera "L'arroseur arrosé", de Louis
Lumière.
|
retour
accueil
|
page
suivante
|
|
|
page
précédente
|
retour
sommaire
|
|